Кран гаражный гидравлический своими руками
На первом этапе
потребуется сварить раму из стальных труб прямоугольного сечения. Она должна быть очень крепкой, чтобы выдерживать серьезные нагрузки. Если требуется, чтобы в кране менялся угол стрелы, то в стойке и стреле высверливаются отверстия, а на их место в качестве втулок устанавливаются трубки. Конструкция соединяется стальным стержнем и простым болтом с гайкой. В основание рамы ляжет устойчивая крестовина, укрепленная отрезками труб или металлическими пластинами.
К нижней части рамы приделываются колеса с тормозами, чтобы при помощи крана можно было перевозить двигатель или другой груз. Колеса подобного типа устанавливают на современные пластиковые контейнеры для мусора, стоящие на улице.
Второй этап
– установка домкрата. Для этого готовятся специальные упоры на стойке и стреле. Они должны быть подвижными, тогда угол крана будет меняться во время работы. Домкрат устанавливается под углом от основания рамы к стреле, он будет принимать на себя основную нагрузку при подъеме тяжестей.
Третий этап
включает установку стрелы, состоящей из отрезка трубы меньшего диаметра, с несколькими отверстиями. Она вставляется внутрь верхней части рамы, соединенной домкратом с основанием крана, и выдвигается на необходимую длину. Затем стрела крепится к основной трубе болтом и гайкой, а на ее конец устанавливается цепь и мощный крюк.
После установки стрелы остается только покрасить кран и приступить к испытаниям. В идеале он должен свободно поднимать до 400-500 кг. При необходимости стойка и стрела укрепляются сильнее, чтобы выдерживать большие нагрузки.
Уважаемые посетители сайта «Лабуда блог» из представленного материала вы узнаете, как самостоятельно собрать гаражный гидравлический кран гусь, рассмотрим чертежи, пошаговые фото сборки, а так же видео испытания самодельного крана для демонтажа двигателя.
Каждый автомобилист за свою практику эксплуатирования автомобиля наверняка сталкивался с поломками двигателя, а не редко и с его заменой или капитальным ремонтом, но чтоб извлечь ДВС с посадочного места потребуется надежная лебедка или кран. Покупка специального оборудования обойдется как минимум 10 К, а устанавливать лебедку на потолок гаража не у всех есть такая возможность, потому как гаражные перекрытия довольно слабые.
Сделать кран типа «гусь» с системой гидравлического поднятия стрелы вполне можно и самостоятельно, для чего понадобится 7 метров профиля 80х80 мм и 3 мм толщина стенки. Пара труб 89 по 700 мм и 76-900 мм. Домкрат пятитонник 5т, пластины толщиной 8 мм 4 шт. Автор в данном случае купил только колеса 2 шт обычных, 2 шт поворотных, 1 м шпильки М-14 В ходе испытаний самодельный кран спокойно поднимает 250-300 кг, так же перевозились бетонные бордюры общим весом 500 кг, все отлично.
Устройство и принцип действия самодельного гидравлического крана «Гусь» по сути довольно простое, да и само название говорит само за себя) Состоит из опоры (разборная) с колесиками для передвижению по гаражу и подкату под автомобиль, вертикальной стойки с домкратом и непосредственно самой выдвижной стрелы с цепью и крюком.
Высота подъема короткой стрелы в нижней точке 90 см в верхней точке. Длинная стрела, низ 80 см, а в верхней 1800 мм и с выкрученным штоком домкрата низ 1400 мм и верх 2250 мм.
И так, давайте рассмотрим, что конкретно понадобится для сборки гаражного крана?
Материалы
- проф труба 80х80 длинной 7 м
- труба 89 мм по 700 мм 2 шт
- труба 76 длинна 900 мм
- колеса 6 шт, 2 поворотные, 2 обычных и 2 с тормозом
- металлические пластины 8 мм 4 шт
- домкрат 5 т
- цепь и крюк, шпилька М-14 длинна 1000 мм
Инструменты
- сварочный инвертор
- УШМ (болгарка)
- дрель
- набор гаечных ключей
Пошаговая инструкция по сборке гидравлического крана гусь своими руками.

Для начала следует ознакомиться с чертежами и схемами, а потом переходим к сборке.








Сначала изготавливается стыковая часть часть опоры, она же будет разборной.



Приваривается вертикальная стойка с распоркой в нижней опорной плоскости.

Установка и крепление домкрата.





Стрела на полный вылет.

Эксперимент в гараже, подъем скутера)

Вес мопеда 120 кг

Вот такой кран вполне можно сделать своими руками с минимальными затратами. Просто, бюджетно и компактно, потому как кран разборный.

Спасибо за внимание!
Обновлено: 04.03.2020
103583
Как вытащить двигатель из машины в гараже, не прибегая к помощи автосервиса?
На самом деле это не такая сложная процедура, как может показаться на первый взгляд. Главная задача – подобрать приспособления для снятия мотора.
Важно! Двигатель весит несколько сотен килограммов. Его падение может не только нанести материальный ущерб, но и привести к тяжелым травмам. Перед тем, как поднимать мотор из подкапотного пространства, необходимо провести следующие процедуры:
Перед тем, как поднимать мотор из подкапотного пространства, необходимо провести следующие процедуры:
- Слить все технические жидкости: масло, жидкость ГУР, «тормозуху».
- Освободить систему охлаждения от антифриза.
- Осушить КПП (за исключением случаев, когда вы извлекаете мотор, не снимая коробку).
- Отсоединить все шланги и патрубки топливной, тормозной систем, а также системы смазки и охлаждения.
- По возможности снять навесное оборудование: компрессор кондиционера, генератор, и пр.
- Отсоединить шлейфы электрооборудования, блок управления двигателя, управляющие кабели форсунок, высоковольтные провода катушек зажигания.
- Снять разъемы со всех датчиков мотора. Рекомендуется составить список («по мотивам» инструкции по обслуживанию и ремонту), это поможет не пропустить скрытый разъем.
- В большинстве случаев требуется снять крышку капота.
Гидравлический кран выполняется из прочного металла и характеризуется устойчивой конструкцией. Главный принцип строения механизма: устойчивая опора при небольшом собственном весе. Это помогает с легкостью поднимать грузы до трех тонн, но максимально – на два метра над землей.
Гаражный кран применяют для:
- снятия двигателя;
- подъема балок, мостов;
- перемещения габаритных узлов.
Кран содержит гидравлический привод и работает по системе сообщающихся сосудов. Метод позволяет сделать подъем плавным.
Стационарные
Стационарный кран устанавливается в больших автосервисах и надежно крепится к монолитному фундаменту. Механизм обладает стрелой с поворотной системой и оснащен ручным приводом. Позволяет проводить работы лишь с одним автомобилем неотрывно.
Неотъемлемый плюс стационарного крана – большая грузоподъемность. Ее обеспечивает монолитная опора, создающая жесткость системы.
Переносные
Подкатной гидравлический кран обладает колесиками на основании. Опорой же выступают нижние металлические балки, от этого теряются показания грузоподъемности. Лучше выбирать кран с массивной треугольной опорой. По конструкции они подразделяются:
- на литые цельные опоры с ограниченным вылетом стрелы, но хорошими показателями грузоподъемности;
- на телескопические или складные – обладают увеличенным вылетом стрелы, но снижают грузоподъемность в разы.
Важно! Складные агрегаты нуждаются в четком следовании инструкции по поднятию разрешенного груза. Стрела не выдерживает и, при несоблюдении дозволенных норм, срывается. голоса
голоса
Рейтинг статьи
Как работает винтовой домкрат
Принцип работы винтового домкрата для легкового автомобиля заключается в перемещении рамной конструкции в заданном направлении под действием смещения гайки винтовой передачи.
Например, в ромбическом домкрате винт с одной стороны закреплен во втулке с возможностью вращения. С противоположной стороны находится гайка, которая жестко закреплена в точке соединения стоек. При вращении винт перемещает гайку и изменяет расстояние между противоположными точками ромбической конструкции. Если горизонтальные противоположные точки приближаются, то вертикальные отдаляются, что и является рабочим движением на подъем.
Другие домкраты работают по примерно таким же алгоритмам с той лишь разницей, что направление рабочих движений в кинематических схемах и рычажные системы отличаются.

Исключением является домкрат бутылочного типа. Он не использует в своей конструкции систему рычагов: здесь работает телескопический принцип винтовой передачи. Но ограниченность диапазона рабочих высот делает этот домкрат малопригодным для обычного легкового автомобиля.
Съемник Форсунок — Приспособление Для Снятия Своими Руками, Виды: Гидравлический, Универсальный, Инерционный и Самодельный, Инструкция по Демонтажу и Замене
В процессе эксплуатации автомобиля возникает необходимость снять форсунки для замены или диагностики. В этот момент автовладельца может поджидать неприятность в виде залипшей форсунки. Причинами этого могут быть как перегрев двигателя, так и просто окисление места контакта, вызванное воздействием агрессивной внешней среды. Приложение чрезмерного усилия вызывает повреждение форсунки. Очень часто она слегка сдвигается с места, а потом заклинивает, делая невозможным движение в любую из сторон. Для решения проблем на помощь приходит специальный съемник, предназначенный для демонтажа застрявших форсунок.
Комплектация фирменного вибрационного съемника форсунок
В комплект инерционного съемника, изготовленного на заводе, могут входить:
- блок экстрактора, выдерживающий работу при различных частотах и амплитудах;
- блокировочный шток вибрационного стержня, предназначенный для фиксации;
- ступенчатые упорные кольца, обычно одно либо два;
- подшипниковое кольцо, улучшающее скольжение и плавность вытаскивания форсунки;
- силовая гайка, изготовленная из высокопрочной стали, для предотвращения быстрого износа резьбы;
- пакет рессорных шайб, устраняющий жесткую фиксацию, способную вызвать повреждения головки и форсунок;
- защитное кольцо, повышающее безопасность работы со съемником.

В некоторых автомобилях, например, Mercedes Vito, Renault Master, Toyota Hiace использование инерционного съемника затруднительно. Связанно это с недостатком места для его размещения. На помощь в таком случае приходит гидравлический съемник форсунок, способный выполнить демонтаж в самых труднодоступных местах.


Самодельные способы демонтажа
Выполняя демонтаж своими руками, важно помнить о риске повреждения головки блока цилиндров. При прикладывании чрезмерного усилия вместе с форсункой может оторваться часть посадочного места
Без дорогостоящего ремонта после этого не обойтись, поэтому запрещено выдалбливать форсунку при помощи подручных средств, например, перфоратора или отбойного молотка.

Изготовленный самостоятельно съемник для форсунок позволяет вынуть форсунку без применения вибратора Vibropac. При этом шанс повредить ГБЦ и продолжительность извлечения увеличиваются. Срок службы самодельного девайса небольшой, поэтому сорванная резьба во время демонтажа не редкость.
Инструкция по снятию застрявших форсунок
Для демонтажа форсунок при помощи фирменного съёмника рекомендуется придерживаться следующей последовательности:
- Устранить все загрязнения при помощи продувки сжатым воздухом;
- В зазор между форсункой и посадочным местом залить проникающую смазку, например, WD-40;
- Установить инерционный съемник над застрявшей форсункой;
- Штуцер слива обратного топлива должен проходить через позиционирующую прорезь;
- Используя динамометрический ключ, навинтить шпиндель на резьбовую часть форсунки. Затягивать необходимо с номинальным моментом, указанным в техническом описании автомобиля. У большинства автомобилей усилие составляет 20 Ньютонов на метр;
- Надеть шайбу проточенной стороной вниз;
- Сверху расположить вторую шайбу. Сферическая ее сторона должна смотреть вниз. Для повышения плавности демонтажа и продления срока службы рекомендуется смазать приспособление маслом;
- Надеть пакет рессорных шайб. идущий в комплекте с фирменным съемником для форсунок;
- Закрутить гайку вручную. Когда усилия станет недостаточно, потребуется ключ на 36. Закручивать следует до появления небольшого усилия.
Дальнейшая работа связанна с применением вибратора Vibropac. При его отсутствии умельцы рекомендуют постукивание молотком. Данный способ сработает при несильном залипании форсунки. При этом риск повредить крышку ГБЦ крайне велик, поэтому данный способ применять не желательно. При наличии Vibropac дальнейшая инструкция действий приведена ниже:
- Снять насадку для демонтажа свечей зажигания;
- Максимально перекрыть подачу воздуха;
- Надеть на ударный штифр;
- Разметить ключ на гайке;
- Нажать на педаль Вибропака;
- В определенный момент под действием вибрации гайка начинает закручиваться. Это обозначает, что снятие форсунок идет успешно. На ключ при этом чрезмерное усилие прикладывать не стоит;
- Закручивать гайку необходимо комбинируя с действием вибрации;
- В определенный момент форсунка освободится. Необходимо снять ключ и вынуть ее вместе со съемником.

Использование съемника позволяет сэкономить время, так как нет необходимости демонтажа крышки ГБЦ. Аккуратность в работе позволит сохранить посадочное место целым. Достаточно почистить его, и можно устанавливать новую форсунку.
swapmotor.ru
Разборочно-сборочный стенд для ремонта двигателя своими руками
Начнем с того, что готовые изделия являются отличным вариантом в том случае, если услуга по ремонту силовых агрегатов и узлов поставлена, так сказать, «на поток». Другими словами, высокая начальная стоимость таких изделий надлежащего качества зачастую не позволяет многим приобретать разборочно-сборочные стенды как для личного пользования, так и для работы в условиях гаражей и даже маленьких СТО.
По указанной выше причине мастера и владельцы небольших автомастерских останавливаются на варианте самостоятельного изготовления стендов, которые используются для ремонта двигателей. Отметим, что изготовить стенд для ремонта двигателя своими руками помогут чертежи, которые представлены в технической литературе, а также в больших количествах встречаются в сети Интернет.
Простой стенд для ремонта двигателя имеет несколько основных базовых элементов:
- плита для закрепления ДВС;
- основание стенда;
- специальный противень-поддон;
- поворотный механизм (обычно червячного типа);
Также следует отметить, что стенд должен быть передвижным приспособлением и являться универсальным решением. Если проще, одни стенды для разборки и сборки могут быть подходящим вариантом для работ только с конкретным типом двигателя или позволяют работать с узко ограниченной категорией, в то время как другие обеспечивают возможность устанавливать и надежно фиксировать всевозможные типы ДВС.
По этой причине, даже если изначально стенд-кантователь изготавливается для обслуживания собственного автомобиля, лучше делать приспособление универсальным, так как в дальнейшем может возникнуть последующая необходимость ремонта других машин. В качестве примера можно упомянуть двигатели отечественного производителя АвтоВАЗ, которые можно крепить на стенд при помощи фланцевого крепежа сзади, при этом надежной фиксации мотора с иномарки таким способом добиться уже не получится.
Параллельно с этим нужно размещать двигатель или отдельный узел так, чтобы центр тяжести закрепленной детали находился напротив оси вращения поворотной плиты. Это позволит вращать закрепленный силовой агрегат, отдельную деталь или узел без лишних усилий. Оснащение стенда колесами, которые способны выдерживать большие нагрузки, позволит облегчить процесс монтажа агрегата на стенд, а также обеспечит возможность перемещения крупных деталей прямо на стенде. Это исключает необходимость частого использования различных подъемников во время ремонта ДВС.
На поддон сверху дополнительно устанавливается сетка с мелкими ячейками. Указанная сетка необходима для того, чтобы размещать на ней и далее промывать снятые элементы над поддоном. Также сетка позволяет удерживать мелкие детали двигателя, которые могут упасть в поддон во время мойки или проведения ремонтных работ.
Для чего и как обкатывать бензиновый или дизельный двигатель после капитального ремонта. Режимы езды, особенности процесса обкатки, первая замена масла.
Что такое рассухариватель клапанов и для чего он нужен. Существующие готовые разновидности специнструмента. Как сделать рассухариватель клапанов самому.
Признаки неисправности и проверка инжекторных форсунок без демонтажа. Диагностика электропитания форсунок, анализ производительности. Советы и рекомендации.
Когда необходимо растачивать коленчатый вал двигателя, для чего нужна расточка коленвала. Как растачивается коленвал, особенности подбора вкладышей.
Особенности работы и причины неисправностей дизельных форсунок. Как самостоятельно выполнить снятие, дефектовку, разборку и ремонт форсунок дизельного ДВС.
Неисправности форсунок дизеля, проверка и самостоятельное выявление проблем. Очистка сопла форсунок дизельного двигателя, регулирование давления впрыска.
Сложная система блоков как рассчитать выигрыш в силе
Если система устроена так, что один простой полиспаст тянет собой другой простой полиспаст, то это уже сложная система блоков. Для теоретического расчёта выигрыша в силе, необходимо условно разделить сложный полиспаст на простые и перемножить значения выигрыша от простых полиспастов.
Например, если система состоит из 4 блоков, и первый условный простой полиспаст имеет выигрыш в силе 3. Он тянет за собой второй простой двухблочный полиспаст тоже с выигрышем в 3. Суммарно усилие, которое потребуется приложить будет в 9 раз меньше. Именно 4-х блочный сложный полиспаст наиболее часто используется спасателями.
Привод гидравлического гаражного крана
Существует несколько видов гидравлического привода:
- с гидроцилиндрами;
- с гидроцилиндрами и лебедками ручного управления.
Когда оператор повышает уровень давления в цилиндрическом блоке, масляная жидкость воздействует на поршневую часть, выталкивая телескопический шток, в это время происходит подъем стрелового оборудования.
По характеру движения выходного звена гидравлического силового агрегата выделяют следующие виды приводов:
- Вращательного движения. Конструкция такого механизма включает в себя гидродвигатель, оборудованный ведомым звеном с неограниченным вращательным движением.
- Поступательного движения. В этом случае используется гидроцилиндр с возвратно-поступательным движением звена ведомого типа (штока поршневого механизма, плунжера).
- Поворотного движения. Механизм крана оборудован поворотным гидравлическим мотором, ведомое звено которого совершает возвратно-поворотное движение на угол менее 270°.
- Регулируемый. В этом случае скорость звена выходного типа можно отрегулировать при помощи изменения частоты вращения коленчатого вала силового агрегата, который активирует работу насоса высокого давления.
- С замкнутой схемой циркуляции рабочей жидкости. Это значит, что топливо возвращается во всасывающую гидравлическую линию насосного механизма. Такой привод имеет небольшой вес и обеспечивает высокие показатели частоты вращения ротора без опасности попадания воздуха в систему.
Способы крепления верёвки к грузоподъёмному механизму
При создании комплексных полиспастов, нередко бывают ситуации, когда троса необходимой длины для крепления подвижного блока не оказывается под рукой.

Кран для газоблоков
Способы крепления троса с помощью такелажа общего назначения:
- С использованием репшнура. С помощью самозатягивающегося узла репшнур привязывается к основному тросу. По мере поднятия груза, схватывающийся узел передвигается по основной верёвке, позволяя тем самым увеличить высоту подъёма груза.
- С использованием зажимов. В случае использования стального троса – использовать репшнур не представляется возможным, поэтому необходимо использовать специальные зажимы.
Надо поднять гараж – причина, деформация фундамента
В гаражных кооперативах, которые формировались еще в советские времена, не особо заботились о качестве и надежности фундамента. Сейчас такие «островки» металлических гаражей часто расположены рядом с новыми микрорайонами.
А при большом строительстве и глубоких котлованах под многоэтажки деформация грунтов неизбежна. Поэтому часто возникает проблема – как поднять металлический гараж, если фундамент просел или перекосился.
Причины деформации ленточного фундамента или просадки грунта под гаражом:
- неравномерный вес металлических стенок гаража. Часто самодельные сварные конструкции сделаны из листов металла разной толщины;
- по стенкам гаража всегда есть полки с инструментами и другими необходимыми для гаражника мелочами. Они тоже добавляют нагрузку на слабый фундамент;
- если рядом происходи масштабная стройка, то деформация грунта неизбежна, поэтому «плывет» фундамент и его надо укреплять;
- ливневые сезонные воды или поднятие грунтовых вод тоже могут вызывать пучение грунта и деформацию фундамента и земли под металлическим гаражом;
- слабый грунт – глина, суглинок и супесь при резких перепадах температур тоже выталкивают старую ленту фундамента при сезонной пучинистости, если фундамент расположен выше точки промерзания почвы.
Необходимо сначала выяснить, по какой причине перекосился гараж и только потом приступать к подъему и ремонту.
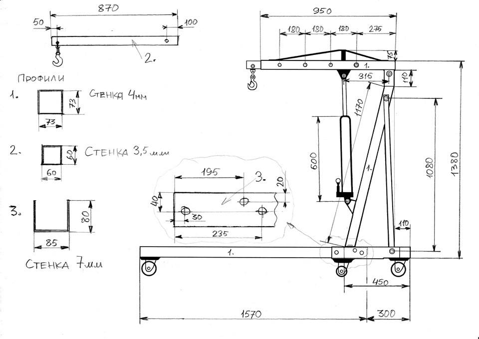
Инструкция по сборке и чертежи
Конструкция получила название «гусь» из-за своей Г-образной формы. Механизм отличается удобством в работе, ведь благодаря ему можно подвести стрелу к моторному отсеку. Это снижает затраты труда на обвязку мотора, из-за чего срок выполнения ремонтных работ сокращается.

Конструкция «гуся» простая. Механизм состоит из разборный опоры, оборудованной колесиками. С их помощью его легко передвигать с места на место, подкатывать под автомобиль.
Устройство для гаража имеет вертикальную стойку, на ней устанавливают домкрат. «Гусь» имеет выдвижную стрелу, которая оборудована цепью с крюком. При активации домкрата стрела идет вверх, поднимая груз.
Гидравлический кран чаще всего используют для подъема двигателя. Устройство можно изготовить по готовым чертежам, но чаще всего используется созданная от руки схема крана, своими руками ее начертят даже новички.
Сначала изготавливают разборную часть поры, она является стыковой. После этого приваривают вертикальную стойку. В нижней части обязательно устанавливают распорку. После этого переходят к установке домкрата, он должен быть надежно закреплен. Стрелу делают на полный вылет, она нужна для снятия двигателя. Все части конструкции сваривают. В результате получается надежное, но маневренное устройство.
Для этого подвешивают груз, который должен быть на 20% тяжелее того, который нужно поднимать. Если механизм выдерживает нагрузку, его можно использовать в работе. Кран-гусь разборный, поэтому он не займет много места в гараже.
Снятие элементов подвески двигателя
Вначале нужно будет открутить все болты крепления картера сцепления от силовой установки.
16. Снятие картера сцепления
Затем следует приступать к элементам подвески двигателя.
Для этого придется выкрутить болты крепления опор мотора. Вначале скручивается гайка с болта на передней опоре. Поскольку на эту опору силовая установка продолжает опираться, то для того, чтобы была возможность вытянуть болт, при помощи монтировки двигатель следует несколько вывесить и извлечь болт. Далее, удерживая монтировкой агрегат, в зазор между ним и подрамником вставить деревянный брусок. После этого появиться возможность открутить болты крепления кронштейна двигателя.
| 17. Снятие передней опоры двигателя | 18. Приподнимая двигатель монтировкой вынимаем болт | 19. Что бы разгрузить кронштейн, подкладываем брусок |
| 20. Головкой на «17» откручиваем 3 болта крепления кронштейна | 21. Болты крепления кронштейна в снятом состоянии | 22. Вынимаем кронштейн с опорой |
Точно также разбалтывается задняя правая опора, с последующей установкой ее на деревянный брусок и снятием кронштейна.
| 23. Ключом на 17 отворачиваем и вынимаем болт | 24. Отворачиваем 2 болта крепления кронштейна задней опоры | 25. Снимаем заднюю опору |
26. Снять болт заднего крепления картера сцепления возможно только после демонтажа задней опоры. На фото показано на снятом двигателеДемонтаж левой опоры крепления двигателя
| 27. Подкладываем брусок | 28. Ключом на «13» отворачиваем гайки крепежакронштейна левой опоры к КПП |
| 30. Вынимаем опору |
За эти рымы зацепляется подъемный механизм. Чтобы извлечь мотор, его нужно до упора сдвинуть влево, чтобы первичный вал КПП вышел из маховика. Вполне возможно, что для этого придется немного кантовать двигатель, и при этом сдвигая его влево.
После того, как вал выйдет из маховика и дисков сцепления, силовой агрегат подъемным механизмом аккуратно поднимается вверх. Это лучше делать вдвоем – один будет поднимать мотор, а второй направлять его, чтобы он нигде не цеплялся.
Установка грузоподъемного механизма
Главным элементом крана является подъемный механизм, который может быть ручным или автоматическим. Тефлер состоит из троса и лебедки, устанавливаемой сбоку стойки. Трос движется благодаря вращению роликов. Дополнительной фиксации элементов не требуется, достаточно закрепить подъемник на стойке.
Самостоятельно изготовленный кран можно оснастить подъемным оборудованием, которое применяется в лифтах. Подобные механизмы отличаются высокой надежностью и способностью выдерживать массивные предметы.
Чтобы упростить выполнение ремонтных работ, допускается подключить к грузоподъемному элементу электрический привод. Для автоматизации конструкции подойдет двигатель мощностью 300-500 Вт. Электропривод монтируется к основанию кран-балки.
Укомплектованная электрическим приводом конструкция находит широкое применение при масштабном ремонте гаража и разборе автомобиля на запчасти, когда требуется выполнить комплекс работ. По принципу действия ручной и автоматизированный краны не имеют существенных отличий.
Опытные автовладельцы говорят, что кран-балка в гараже нужен редко, но если уж потребовался, то заменить его нечем. Он используется для снятия и установки двигателя, реже – для перемещения других грузов. Покупные механизмы стоят дорого и занимают много места, поэтому оптимальный выход для частного мастера – кран балка своими руками из подручных материалов.
Для того чтобы сделать гаражный подъёмник своими руками, вам потребуется:
- Для стоек – труба сечением 100х100, длиной 2350 мм – 2 шт.
- Для поперечной штанги – круглая труба диаметром 100 мм и длиной 4150 мм.
- Для опор – труба круглая диаметром 110 мм и длиной 600 мм – 2 шт.
- Для оснований и диагональный опор – уголок 100х100 мм.
- Болты М 16 для крепления опор к штангам.
- Колёса (например, от складской тележки) – 4 шт.
- Ручная лебёдка грузоподъемностью до 1 т.
- Трос и ролики (например, от привода дверей лифта).
Кран-балка необходим для перемещения различных грузов
Устройство кран-балки
Механизм представляет собой П-образную конструкцию (мост) с подъемным механизмом. В крупных автомастерских обе части могут быть подвижными. Мост движется по рельсам, подъёмник – по пролётной балке. В гаражах для экономии места рельсы не прокладывают, а мост оснащают колёсами.
Устройство кран-балки состоит из опор, пролетной балки и подъемного механизма. Опоры свариваются из металлических труб и швеллера. В качестве грузоподъемного механизма используется ручная или, реже, электрическая лебедка.
Краны-балки относятся к типу «управляемая с пола» в отличие от тех, которыми манипулируют из кабины. Для облегчения труда механика гаражный кран может быть оборудован электрической лебёдкой
. Это увеличит расходы на изготовление и обслуживание, но при необходимости часто демонтировать двигатели и другие тяжёлые агрегаты, окупит себя. В сельской местности, где есть перебои с электричеством, недостаточная мощность или перепады напряжения, стоит отдать предпочтение ручной лебёдке. Особенно если речь идёт о личном гараже, а не частной мастерской.
Выше мы рассмотрели, из чего состоит кран-балка: опоры, пролётная балка и подъёмник. Изготовление проходит в несколько этапов:
- Сварить вертикальные опоры в виде перевёрнутой буквы Т с двумя диагональными опорами.
- Приварить пролётную трубу, чтобы получилась П-образная конструкция.
- Установить колёса.
- Приварить к одной из боковых опор лебёдку.
- Установить подъёмный механизм: зафиксировать ролики, протянуть трос и подвесить крюк.
Готовые чертежи можно найти в сети, но проще сделать самому, подогнав изделие под размеры гаража.
Важно Технические характеристики автомобильной крановой установки КС-3574 на базе Урал-5557
Чертеж крана
Если этот вид подъемника по каким-то причинам не подходит, можно изготовить гаражный кран гусь своими руками – это займёт даже меньше времени. Кран-гусь имеет Г-образную форму, где вертикальная стойка оснащена домкратом, а не лебёдкой. Его подкатывают под автомобиль спереди и поднимают двигатель, качая гидравлический домкрат. Стрела двигается вверх и поднимает груз.
Ещё одно интересное решение, которое поможет сэкономить место – подвесной кран-балка. В отличие от опорной конструкции, описанной выше, пролётная балка крепится к потолку посредством рельсы (двутавровой балки). Этот вариант требует достаточной высоты потолка и прочности постройки.
Все устройства должны быть испытаны с грузом, вес которого на 20 % превышает максимальную планируемую нагрузку.




































