Инструмент и материалы
Чтобы сделать своими руками адаптер к мотоблоку необходимо заранее приготовить все, что надо. Подобрать остатки, которые есть в кладовке, требований к ним нет, кроме одного: надежность. Все части должны нормально выдерживать высокие нагрузки, оказываемые при работе. Основной перечень выглядит так:
- Сварочный аппарат. Если его нет, взять на день напрокат, это дешевле, чем покупать. Еще проще приготовить все заранее и пригласить сварщика на час, он соединит все части по чертежу.
- Болгарка. С ее помощью металл режут, шлифуют. Не забывать купить несколько отрезных и хотя бы один шлифовальный диск.
- Электродрель с комплектом сверл по металлу разного диаметра.
- Измерительный инструмент: рулетка, угольник, карандаш, уровень для проверки плоскости.
- Профилированная труба для сборки каркаса. Размер подбирают по месту, главное – чтобы рама была прочной.
- Колеса и комплектующие у них. Использовать для оси металлический прут подходящего диаметра, можно сделать отдельные модули под каждый диск. Понадобятся подшипники, подбирать по диаметру посадочного отверстия.
- Сцепка. Проще всего купить готовую, так как узел сложно изготовить, а стоит он дешево. Тогда не придется ничего подгонять, работа ускорится почти вдвое.
- Сиденье от любой техники, стальной лист для опорной части, педали, рукоятка тормоза. Подбирать комплектующие по чертежу.
Если схема с размерами есть на руках, то при покупке профилированной трубы ее даже могут нарезать так, как надо. Вместо нее допускается использовать уголки, но с ними работать не так удобно, да и вид будет не таким привлекательным. Не забывать про антикоррозийное покрытие для рамы, проще всего купить состав «3 в 1», тогда не придется наносить грунтовку.
Совет!Если конструкция будет ставиться сзади, сцепок нужно две, чтобы можно было цеплять оборудование на адаптер.
Как сделать своими руками полноприводный адаптер для мотоблока Нева
Безусловно, приобретение готового адаптера к мотоблоку Нева – это наиболее простой и оптимальный выход из ситуации. Однако, стоят они достаточно много, поэтому далеко не каждый дачник или фермер может себе позволить их приобретение. Неудивительно, что многие задают вопрос – как сделать адаптер к мотоблоку Нева?
В сети есть достаточно много рекомендаций, касающихся изготовления адаптеров, а также множество чертежей, позволяющих увидеть данное устройство более детально. Воспользовавшись ими, вполне реально изготовить такой агрегат в домашних условиях, применяя самый минимум материалов и инструментов.
Что понадобиться для изготовления самодельного адаптера
Для изготовления самодельного адаптера нам понадобится:
- колесная пара;
- стальные уголки, листы железа и трубы;
- кресло для водителя;
- сварочный аппарат;
- крепежные соединения и т.д.
Адаптер для мотоблока Нева, сделанный своими руками, чертежи которого будут представлены позже, можно изготовить, используя этот минимальный перечень. Прежде чем приступать непосредственно к изготовлению устройства, нужно изобразить его схему.
На ней должны быть предусмотрены степени нагрузки разных частей рамы, а также общие размеры устройства. Заняться этим можно самостоятельно, а можно воспользоваться чертежами тех, кто уже с успехом осуществил сборку самодельного адаптера.
Переходим к изготовлению конструкции. Разделим всю работу на несколько основных шагов:
- Нам понадобится квадратный металлический профиль, длина которого должна составлять примерно 1800 мм. Поперек данного профиля нужно приварить такой кусок, но меньшего размера – порядка 600 мм. К этому куску профиля будут крепиться колесные стойки.
- Высота стоек, при этом, должна составлять порядка 300 мм.
- Далее нужно приварить раскосы. Привариваются они к основной раме, а также к колесным втулкам. Угол их расположения относительно рамы можно делать любой, на ваше усмотрение.
- Дополнительно к металлическому профилю привариваем балку. Это нужно для усиления рамы.
- Конструкция рамы для навесного оборудования сваривается из швеллера номер 10. Соединяется он с колесной осью куском квадратной трубы, а швы завариваются сваркой.
- Далее привариваем к раме рычаг управления, обладающий тремя коленами. Соответственно, это 350, 550 и 200 мм. Прикрепляем к этому рычагу еще один размером 800 мм, который будет регулировать усилие. Рычаги соединяются между собой обычными болтами.
- К основной раме привариваем кусок трубы длиной примерно 300 мм – это будет наша подставка под сиденье. Наверху также завариваем два куса трубы перпендикулярно этой подставке. Это нужно для того, чтобы сидушка была более устойчивой и не оторвалась в процессе работы.
- Сиденье можно взять готовое, либо сделать из куса фанеры, затем оббить его поролоном или другим мягким материалом. Сиденье крепится к поперечным кускам трубы, приваренным к подставке под сиденье, а также к самой подставке. В качестве крепежа используем обычные болты.
- Спереди нужно приваривать механизм сцепки с мотоблоком.
Как мы видим, работа довольно простая, но потребуется навык работы со сварочным аппаратом, т.к. иного метода соединения всех составляющих не существует.
Можно немного усложнить конструкцию, сделав самодельный адаптер к мотоблоку Нева, у которого будет присутствовать рулевое управление. Для этого нам понадобится:
- листы железа;
- стальные трубы и уголки;
- сиденье;
- пара колес;
- сварочный аппарат.
В таком случае, рама адаптера должна быть хорошо сочленена с мотоблоком, чтобы конструкцию не вело по сторонам. В качестве руля можно взять готовое, от старых советских автомобилей (к примеру, от ВАЗа).
Обзор адаптеров
По конструкции их разделяют на простые и сложные (универсальные). Первые могут только обрабатывать почву, а вторые – вдобавок перевозить различные малогабаритные грузы. Устройство представляет собой металлическую раму с установленными двумя колесами. Комплектуются адаптеры коротким или длинным дышлом, в зависимости от мощности мотоблока, а также приспособлениями для увеличения ширины колесной базы и высоты крепления дополнительного навесного оборудования.
По способу соединения с мотоблоком модули бывают:
- Прочного сцепления. В таких конструкциях предусмотрен отдельный руль, при этом колесная пара может быть размещена как спереди, так и сзади мини-машины.
- Подвижное крепление. В данном случае при повороте рулевого колеса меняется угол поворота между прицепным механизмом и мотоблоком. Место посадки оператора поворачивается. Подвижное соединение требует значительных усилий водителя при выполнении маневра.
В любом варианте ведущие колеса могут располагаться спереди конструкции или сзади конструкции.
В этом видео вы узнаете, какие плюсы и минусы адаптера для МТЗ:
Пахотный адаптер Целина для мотоблока Беларус – наиболее востребованный в сельском хозяйстве. При создании устройства применяются только качественные материалы, и им удобно управлять. Сидение в модуле довольно комфортное и не дает уставать водителю долгое время. Пневматические колеса придают устойчивость конструкции при работах в любых почвах. Благодаря ленточному тормозу, облегчается торможение модели. Подключение адаптера увеличивает скорость машины до 10 километров в час, этого вполне достаточно для ведения сельскохозяйственных операций. Масса пахотного модуля не превышает 50 килограмм.
Адаптер Хорсам ИС-2 к мотоблоку МТЗ – превращает конструкцию в маленький трактор. В нем есть руль и сидение, движущая пара колес установлена в задней части. Этот мини-трактор отлично выполняет поставленные задачи на небольшой территории садов и огородов. Посадка водителя напоминает мотоциклетную, что создает комфортные условия при проведении сельхозработ
Система управления (газ, тормоз, включение силового агрегата) располагается на руле, что немаловажно для оператора установки. Устройство может подключаться к мотоблоку МТЗ 09Н Минского завода
К нему легко присоединяется дополнительное оборудование, такое как плуги, различные фрезы и культиватор тракторный 06, косилки и копалки, а также снегоуборочный механизм.

Видов адаптеров для МТЗ – множество Существует ряд адаптеров других производителей. К ним относятся:
- Модуль АПМ к мотоблоку Нева . Позволяет присоединить окучники, плуги, бороны, картофелекопалки и многое другое оборудование. Он с легкостью тянет за собой прицепную тележку. Выпускается адаптер двух видов: на одну ось и две. Именно для этого предусмотрен специальный вид фаркопа. Под местом водителя конструкция наделена рессорой, которая амортизирует в случае работы на неровной поверхности грунта. Возле водителя установлена педаль тормоза, нажав на которую, можно легко приостановить движение мотоблока. Пневмошины, которыми оснащено устройство, обеспечивает плавное передвижение по пересеченной местности. Сборка конструкции не представляет проблем, она довольно проста и понятна. В случае появления вопросов, можно заглянуть в инструкцию, в которой представлена схема конструкции адаптера.
- АМПК-500 производства фирмы Кадви, используемый в сочетании с тяжелыми видами мотоблоков. Привод установлен на заднюю пару колес. Кузов прицепного устройства с легкостью поднимается и способен перемещать грузы массой в 500 килограмм.
- ЕМК предназначен для подсоединения небольшого навесного оборудования. В модуле предусмотрено сидение водителя.
- ПМГ 300 – мотоблочная грузовая установка позволяет разместить грузы в кузове прицепа до 350 килограмм.
Совет. Имея в хозяйстве мотоблок, не поленитесь и приобретите адаптер. Его установка увеличивает тяговое усилие как минимум в два раза. Все работы, связанные с обработкой земли, пройдут как одно мгновение.
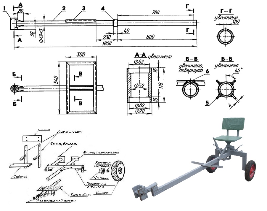
Адаптер для мотоблока своими руками чертежи и размеры
Ниже, приведены чертежи и размеры, а так же материалы необходимые для изготовления адаптера к мотоблоку сложной конструкции.
Что понадобится при изготовлении адаптера
— Листы металла для опор для ног
— Квадратный металл. Профиль

Ниже, приведена кинетическая схема, которая поможет обеспечить равновесие конструкции, и избежание дополнительной нагрузки. Чертеж ниже показывает схему мини трактора, сделанного из мотоблока Нева.

Двигатель силового агрегата (2), приводящий во вращение передние колеса (1), передает крутящий момент через цепь (3) на реверс-редуктор (4), а с него посредством карданной передачи (5) на задний мост (6), приводя во вращение задние ведущие колеса (7).
— При изготовлении рамы, нужно не забыть про устройство втулки и вилки, для обеспечения свободного поворота прицепа.
— Кузов адаптера к мотоблоку, изготавливается и стального листа, а борта кузова, должны быть высотой не менее 30 – 35 см.
— Сиденье устанавливается на балку приваренной к основной раме при помощи болтов. Расстояние о начала рамы до сиденья, должно составлять 80-90 см.
— Проверка роботоспособности всего механизма.
Дополнительные чертежи простого адаптера
Ниже, чертеж одного из самых простых в конструктивном плане адаптеров.


К раме, изготовленной из квадратной профилированной трубы размером 50*50 мм и толщиной 2 мм, приварены:
— Упор для ног в виде перпендикулярно установленной трубы;
— Стойка с установленным на него сиденьем;
— Квадратная труба того же сечения, для установки колес;
Чертежи ключевых узлов адаптера
Механизм сцепки. Выглядит как сварная конструкция, вставленная в основную раму и закрепленную болтами. Состоит из наваренных друг на друга двух отрезков квадратной трубы и отрезка обычной «водной» трубы калибром 1 -1,5 дюйма.

В трубу, вставлен не до конца, зажатый болтом, шток с наваренным самодельным тройником. Шток смазан солидолом и обеспечивает поворот тройника по оси, для обеспечения эффекта качения при передвижении по неровной почве.
Узел крепления колес. Конструкция состоит из двух отрезков трубы, сваренных перпендикулярно. Горизонтальный отрезок вставляется в трубу крепления и скрепляется болтом. На вертикальной части закрепляют (на подшипниках) ось с колесом.

Другие узлы адаптера не столь важны, и мы их рассматривать не будем.
Адаптер для мотоблока Нева
Чертежи и размеры для разных мотоблоков, могут изменяться в зависимости от конструктива. Так для популярных моделей мотоблоков Нева, МТЗ, ОКА, самодельные адаптера могут значительно отличаться.

Сделав самодельный адаптер к мотоблоку, использовав с ним различные виды навески, можно не только облегчить работу, но и значительно повысить производительность.
Что такое адаптер и каково его предназначение?
Как уже говорилось выше, адаптер к мотоблоку нужен лишь в том случае, если вы хотите переделать агрегат в минитрактор. Это возможно сделать с очень мощными машинами, работающими на дизельном топливе или бензине. Ведь вы будете не просто использовать ее в прямом назначении, но и будете ехать, перевозить очень тяжелые грузы.
Следовательно, мотоблок должен выдерживать большие нагрузки.
По сути конструкция адаптера очень проста. Он выглядит как тележка, на которым прикреплены разные детали, как:
- сцепки для крепления мотоблока и переходник для навесного оборудования;
- сидение для водителя;
- колеса;
- рама для крепления основных элементов;
- руль.
Когда вы переделываете агрегат под минитрактор, вы можете еще больше расширить его возможности, так как у вас появится возможность крепить уже самодельное навесное оборудование. Конечно, сравнение с минитрактором в какой-то степени условно, ведь мощность техники будет такой же, как и мощность самого мотоблока, а, если точнее, его двигателя. Минитракторы же имеют больше лошадиных сил. Вы также можете модернизировать оборудование еще больше, сделав навес от солнца. С такой машиной вам не будут страшны изнурительные земельные работы под палящим солнцем, а ваше здоровье вам в итоге точно скажет спасибо.

Большинство адаптеров имеет конструкцию, которая подразумевает крепление тележки, в которой можно перевозить грузы. Также может быть подъемный рычаг, что еще больше упрощает процесс управления и пользования. Есть две сцепки: к первой вы крепите сам мотоблок «Нева», а ко второй — любое навесное оборудование. К тому же механизм идет с рулем, что улучшает его маневренность.
Колесная база делается очень прочная, так как она должна выдерживать большие нагрузки, ведь вы будете ехать на агрегате сами, а также можете перевозить большие грузы. Вы можете использовать машину в любых условиях, даже самых сложных. Однако помните, что по правилам строго запрещено на таком оборудовании выезжать на оживленную трассу.
Вы можете передвигаться только по сельской местности и на небольшие расстояния.
Несмотря на то, что все адаптеры для мотоблока очень похожи, все же в продаже вы можете найти разные виды, как:
- Задний с рулевым управлением. С таким адаптером вы можете переделать устройство в минитрактор, и при этом сохранить силу используемого двигателя. Сцепка находится впереди адаптера, за которую он и крепится к основному агрегату. В комплекте вы найдете такие составляющие, как рама, руль, два колеса, сидение, педаль газа и тормоза, сцепление. В задней части находится другая сцепка для инструментов по обработке земли и уходу за вашим участком;
- Передний адаптер к мотоблоку «Нева». Похож на задний вариант, но при этом сцепка для крепления к мотоблоку находится впереди. У вас появится возможность установится грунтозацепы или колеса большого диаметра, что создаст лучшее сцеплением с поверхностью земли и утяжелит весь агрегат. Также передний адаптер для мотоблока можно полностью разобрать, что его использование более практичным.
Как сделать минитрактор из мотоблока МТЗ

Чтобы переделать мотоблоки данной марки также следует учитывать их конструкцию и возможности. Агрегаты МТЗ обладают достаточно высокой мощностью, что дает возможность сделать из них полноценный гусеничный мини-трактор. Он будет отличаться высокой проходимостью и отличным сцеплением с почвой, благодаря чему качество вспашки грунта у такой машины будет в разы выше, чем у колесных мини-тракторов.
Перед тем, как приступить к работе, обязательно изучите чертежи, в которых вы найдете всю требуемую для переделки информацию.
Порядок действий при сборке минитрактора выглядит следующим образом:
- Вначале переведите мотоблок в режим эксплуатации с косилкой;
- После этого полностью демонтируйте переднюю площадку агрегата;
- В передней части изготавливаемого мини-трактора установите гусеничный привод;
- В нише, предназначенной для монтажа рулевой тяги, установите регулировочную тягу. Данный элемент увеличит жесткость всей конструкции;
- К верхней части рамы приварите сиденье для водителя;
- Рядом с мотором обустройте площадку для монтажа аккумулятора и гидрораспределителя.
Адаптер для мотоблока своими руками чертежи и размеры
Ниже, приведены чертежи и размеры, а так же материалы необходимые для изготовления адаптера к мотоблоку сложной конструкции.
Что понадобится при изготовлении адаптера
— Листы металла для опор для ног
— Квадратный металл. Профиль
Ниже, приведена кинетическая схема, которая поможет обеспечить равновесие конструкции, и избежание дополнительной нагрузки. Чертеж ниже показывает схему мини трактора, сделанного из мотоблока Нева.
Двигатель силового агрегата (2), приводящий во вращение передние колеса (1), передает крутящий момент через цепь (3) на реверс-редуктор (4), а с него посредством карданной передачи (5) на задний мост (6), приводя во вращение задние ведущие колеса (7).
— При изготовлении рамы, нужно не забыть про устройство втулки и вилки, для обеспечения свободного поворота прицепа.
— Кузов адаптера к мотоблоку, изготавливается и стального листа, а борта кузова, должны быть высотой не менее 30 – 35 см.
— Сиденье устанавливается на балку приваренной к основной раме при помощи болтов. Расстояние о начала рамы до сиденья, должно составлять 80-90 см.
— Проверка роботоспособности всего механизма.
Дополнительные чертежи простого адаптера
Ниже, чертеж одного из самых простых в конструктивном плане адаптеров.
К раме, изготовленной из квадратной профилированной трубы размером 50*50 мм и толщиной 2 мм, приварены:
— Упор для ног в виде перпендикулярно установленной трубы;
— Стойка с установленным на него сиденьем;
Необходимые расходные материалы, детали и запчасти
Чтобы понять, что необходимо для изготовления, давайте рассмотрим основные элементы готового минитрактора:
- Рама (производится из любого металлопроката)
- Устройство для совершения поворотов
- Любые тормоза
- Сиденье
- Металл для обшивки кузова
- Сцепка, которая служит для подключения другого оборудования.
Все эти составляющие можно купить в местах разборки автомобилей или на складах металлолома. Но к их выбору следует подойти ответственно. Зачастую они не совсем новые, следовательно их нужно тщательно осмотреть на целостность и дефекты. Ведь здесь нельзя допустить использование повреждённых комплектующих. В противном случае всё устройство будет работать не правильно.

Состав адаптера для мотоблока
Визуально устройство схоже с телегой, прикрепленной к мотоблоку. Кто-то называет такой аппарат «тракторенком». В состав механизма входят:
- рама;
- сидение;
- колеса, благодаря которым он передвигается по огороду. Колеса могут быть резиновые (с протектором, позволяют ездить по утрамбованной дороге) и железные (используются для работы с большими объемами пашни). В большинстве случаев колеса продаются в комплекте, но если возникнет желание их поменять, то помните, что есть варианты выбора;
- чугунное или стальное устройство для крепления с работающим блоком. Данный элемент является самым важным составляющим, оно позволяет транспортному средству быть устойчивым.
Как изготовить своими руками
Разумеется, приобретение адаптера к мотоблоку, готового к работе — это оптимальный и простой выход из ситуации. При всем том стоят они действительно довольно много, поэтому вовсе не каждый фермер или просто дачник готов позволить себе их приобретение. Не приходится удивляться, почему многие задаются вопросом, как сделать адаптер собственноручно.
Это, конечно, возможно, и в сети можно найти довольно много рекомендаций, которые касаются самостоятельного изготовления адаптеров. БОлее того, есть и множество чертежей, дающих возможность рассмотреть это устройство более наглядно и детально.
Использовав их, вполне возможно создать такой агрегат в бытовых условиях, используя минимум инструментов и материалов. Для производства самодельного адаптера потребуется:
- сварочный аппарат;
- колесная пара;
- стальные уголки и листы;
- водительское кресло;
- крепежные соединения; трубы из железа.
Вся работа будет состоять из нескольких шагов:
- Берем квадратный металлический профиль, длиной примерно 1800 мм. Поперек него привариваем такой же железный лоскут, только меньшего размера — примерно 600 мм. К этому полотну профиля в дальнейшем закрепятся колесные стойки, высота которых должна быть около 300 мм.
- После этого нужно прикрепить раскосы. Крепят их к центральной раме и к колесам. Угол расположения колесных втулок относительно рамы допускается любой, какой хочется. К металлическому профилю дополнительно приваривают балку. Это необходимо для укрепления рамы.
- Раму для дополнительного оборудования сваривают из швеллера № 10.
- С колесной осью она совмещается посредством куска квадратной трубы, а швы свариваются сварочным аппаратом.
- Теперь к раме привариваем рычаг управления с тремя коленами (200, 350 550 и миллиметров).
- Крепим к рычагу еще один (размер 800 мм), он будет регулировать усилие.
- Рычаги соединяют между собой обыкновенными болтами.
Первый этап пройден. Приступаем к следующему.
Работа с конструкцией адаптера
Теперь начинает работу с адаптером. Для этого выполняем следующие действия:
- К центральной раме нужно приварить кусок 300-миллиметровой трубы — это будет подставка под водительское сиденье.
- Сверху перпендикулярно этой подставке аналогичным образом свариваем 2 куска трубы. Это требуется для того, чтобы сидушка не оторвалась в процессе работы и была более устойчивой в процессе тряски при работе. Сиденье может быть готовым, а можно его сделать самостоятельно из куска фанеры и поролона, это уже на усмотрение мастера.
- Сиденье крепим к поперечным кускам трубы, которые привариваем к самой подставке, а также к подставке под сиденье. В роли крепежного элемента применяем обыкновенные болты.
- Спереди привариваем механизм сцепки с мотоблоком, после чего работа может считаться оконченной.
Адаптер с рулевым управлением
Если же навыки есть, то при желании конструкцию можно несколько усложнить, изготовив еще и самодельный адаптер к мотоблоку, к которому можно приладить еще и рулевое управление.
Чтобы осуществить эту задумку, нужно будет приготовить следующие материалы и инструменты:
- сварочный аппарат;
- сиденье;
- 2 колеса; стальные трубы и уголки;
- листы железа.
При такой конструкции раму адаптера необходимо крепко соединить с мотоблоком, в противном случае устройство будет, как говорится, «вести по сторонам». Для конструкции можно взять любой готовый руль, пусть даже от старых «совковых» автомобилей (от того же от ВАЗа, например).
Адаптеры для любого мотоблока, в том числе и для Невы, дают возможность значительно повысить комфорт оператора при управлении мини-трактором. Фактически, водителю уже не придется постоянно волочиться за аппаратом. Теперь он может просто сесть в удобное сиденье и делать все то же самое, только с комфортом и в большем тепле.
Конструкция таких агрегатов довольно проста, и самостоятельное производство их в домашних условиях вполне возможно. Тут необходимо учитывать, что домашняя сборка подразумевает наличие хотя бы базовых умений в сварочной работе, а также с сопутствующего инструментария. Также потребуется запастись большим количеством уголков и металлических труб, чтобы не прекращать работу из-за недостатка материала. В целом же, целесообразность собственноручной сборки адаптера есть, тем более учитывая, что при этом значительно экономятся денежные средства.
Современный мотоблок является высокотехничной машиной для качественной обработки почвы. С его применением значительно экономятся силы и время его владельца. Многие агрегаты подлежат модернизации благодаря использованию дополнительных конструкций и навесов. В их числе адаптер к мотоблоку.
Рекомендации по эксплуатации
Как показывает практика, «Нива» поступает на реализацию в уже собранном виде, но после приобретенияперед установкой навесного оборудования требуется выполнить правильную регулировку основных узлов. Грамотная подготовка оборудования позволяет выполнять полноценную работу с максимальным использованием характеристик.
Для полноценной работы двигателя обязательно осуществляется настройка клапанной системы. С этой целью выполняется разборка карбюратора, а также откручивание всех винтовых соединений на верхнем и нижнем корпусе с последующей чисткой элементов. На следующем этапе выполняется настройка клапанов при помощи регулировочных винтов.
Чтобы оборудование служит максимально долго и сохраняло свою работоспособность, следует придерживаться следующих рекомендаций по эксплуатации:
в процессе установки культивирующих навесов нужно контролировать направление ножей по ходу движения оборудования;если в процессе проведения сельскохозяйственных работ колеса буксуют, то рекомендуется установка дополнительных грузов;очень важно контролировать качество и чистоту используемого в мотоблоке топлива;при запуске в работу холодного устройства необходимо закрывать воздушную подачу посредством специальной задвижки;после запуска РУД устанавливается на позицию ХХ, а двигатель прогревается примерно три минуты;категорически запрещается выставлять обороты на максимальные показатели на этапе прогрева мотора;особенно важно предотвращать в процессе работы попадание масла на поверхность воздушного фильтрующего элемента. Прежде чем приступать к работе с адаптерами и мотоблоками, очень важно ознакомится с прилагаемой производителем инструкцией. Прежде чем приступать к работе с адаптерами и мотоблоками, очень важно ознакомится с прилагаемой производителем инструкцией
Прежде чем приступать к работе с адаптерами и мотоблоками, очень важно ознакомится с прилагаемой производителем инструкцией
Особенности конструкции приставки
Перед изготовлением любого устройства, нужно получить максимум знаний и информации о нем, чтобы в итоге получить максимально качественное изделие, для этого рекомендуем почитать интересную статью про адаптеры для мотоблока. В ней находится исчерпывающий объем информации по данной теме, а здесь обсудим только важные моменты.

С виду похож на трактор, но присмотритесь, сзади мотоблок с рогами
Из особенностей конструкции стоит отметить способ крепления, всего их 2:
- передний – адаптер крепится спереди мотоблока,
- задний – адаптер крепится сзади.
Еще есть разделение по способу управления: рога или руль, а также по исполнению рамы: с подвижным сочленением, жесткое крепление.
Рога – это опять же просто, а руль – сложно, но практично.
Поэтому, если планируется регулярно использовать самодельный адаптер с мотоблоком, то лучше выбрать вариант с передним способом крепления, с рулевым управлением.
Раму с подвижным сочленением сделать своими руками тоже не просто, также требуется больше опыта, времени и материалов. Себестоимость будет дороже. Мотокультиватор получит меньший радиус поворота, лучше управление. Но, маневренность мотоблоку с адаптером нужна в основном в условиях ограниченного пространства, поэтому, если выбираете такую раму в основу своей самоделки, то учитывайте условия эксплуатации.
Все остальные элементы конструкции: сидение, тормоза, подставка под ноги, колеса, выполняются одинаково и каких-либо существенных нюансов в этом нет. Единственное, забыли упомянуть про кузов. На заводских модулях, например АК-1, устанавливается кузов, позволяющий дополнительно перевозить 100-200 кг груза.
Схема и чертежи модулей
При изготовлении своими руками адаптера к мотоблоку пригодятся разного рода схемы и чертежи, они позволят быстрее понять принцип и основы устройства приставки. Также на их основе можно сделать собственный чертеж для будущей самоделки.
Чертеж заднего адаптера
Еще одна интересная схема
Схема крепления сидения для модуля
В продолжение темы схем и чертежей, рекомендуем посмотреть интересное видео, автор которого делится готовым чертежом заднего адаптера для мотоблока, схема видна на времени 2:30. Автор дает комментарии к своей разработке, размеры профилей, листового металла.




















![Адаптер для мотоблока [как крепить, как сделать своими руками]](https://dostavkatk.ru/wp-content/uploads/7/2/5/725a91f0f9b8a52e873459a4baf47f6f.jpeg)














